Free Printable Floor Plan Creator
Free printable floor plan creator - Free printable floor plan templates are available to download here. When the plan is complete you can download your map in PDF format to print or send to your friends. You have to move the furniture back and forth if you are not satisfied with the way it looked especially if you just based the planning on your imagination. Also support Flowchart BPMN UML ArchiMate Mind Map and a large collection of diagrams. Floorplanner is the easiest way to create floor plans. Create high-quality 2D 3D Floor Plans in minutes on PC or Mac. US695 per extra 10 projects pack. Add walls windows and doors. You need not do the planning in an old-fashioned way. Convert to 3D Floor Plan Diagram.
With SmartDraws floor plan creator you start with the exact office or home floor plan template you need. Create your own free floor plans using this online software. Fast Floor Plan tool to draw Floor Plan rapidly and easily. Easily design an emergency floor plan with this online tool for hotels office rooms home or even public buildings. Followings are some of the large collection of free floor plan template we provide to. Use arrows icons and the ISO standard signs for fire safety and prohibition for international understanding. Advertentie Download software free to easily design 3D floor plan layouts for your home. There are many websites that offer free printable templates of floor plans. FREE for non commercial use. E ven a 5 year old can use it.
Free Floor Plan Template Free Floor Plans Floor Plan Design Floor Plan Layout
Designing a floor plan has never been easier. US695 per extra 10 projects pack. Use arrows icons and the ISO standard signs for fire safety and prohibition for international understanding.
Show ImageDownload The Free Floor Plan Worksheets To Plan Out Your New Home Room Planner Free Floor Plans How To Plan
In this article we will show you different types of free printable templates and you can visit the floor plan templates page to download more free floor plan. Our floor planner software is a super fun 3D modeling tool. When the plan is complete you can download your map in PDF format to print or send to your friends.
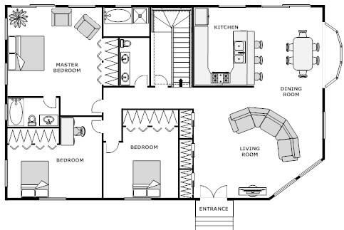
Show ImageFree Floorplan Template Inspirational Free Printable Floor Plan Templates Download Simple Floor Plans Free Floor Plans Floor Plan Design
Free Floor Plan Creator from Planner 5D can help you create an entire house from scratch. There are many websites that offer free printable templates of floor plans. The floor plan software features a large collection of floor plan symbols and tools making it so easy to produce professional design for your new office to show your contractor co-workers and interior designer.
Show Image3 Bedroom House Short Drive From The Beach Reebok Garden Route Free House Plans Bedroom House Plans House Plans South Africa
Followings are some of the large collection of free floor plan template we provide to. There are many websites that offer free printable templates of floor plans. Thus our free floor plan maker will help you create accurate and detailed designs in a variety of scenarios.
Show ImageKitchencounterdesign Net House Floor Plans Home Layout Design House Blueprints
The floor plan software features a large collection of floor plan symbols and tools making it so easy to produce professional design for your new office to show your contractor co-workers and interior designer. Our floor planner software is a super fun 3D modeling tool. Create high-quality 2D 3D Floor Plans in minutes on PC or Mac.
Show ImageFree Floor Plan Template Luxury Diy Printable Floor Plan Templates Plans Free Vinyl Plank Free Floor Plans Floor Plans House Plans
Also support Flowchart BPMN UML ArchiMate Mind Map and a large collection of diagrams. Easily design an emergency floor plan with this online tool for hotels office rooms home or even public buildings. It is a versatile and powerful floor plan maker which enables you to envision your dream house.
Show ImageFree Floorplan Template Inspirational Free Home Plans Sample House Floor Plans Simple Floor Free Floor Plans Simple Floor Plans Floor Plans
Creating floor plans by hand needs a lot of time. Next stamp furniture appliances and fixtures right on your diagram from a large library of floor plan symbols. Low resolution PNG and JPEG export.
Show ImageDesign Elements Basic Furniture In 2021 Floor Plan Symbols Floor Plans Floor Plan Design
Next stamp furniture appliances and fixtures right on your diagram from a large library of floor plan symbols. GetApp helps more than 18 million businesses find the best software for their needs. EdrawMax has advanced compatibility so that you can export your floor plans to any common-used formats including Visio MS.
Show ImagePerfect Free 2d Floor Plan Maker And Review Free Floor Plans Floor Plan Design Floor Plan Creator
EdrawMax has advanced compatibility so that you can export your floor plans to any common-used formats including Visio MS. Once you have a basic layout done click the 3D button and it converts the 2D design into something like what you see below. Using our free online editor you can make 2D blueprints and 3D interior images within minutes.
Show ImageApartment Furniture Layout Furniture Layout Apartment Furniture
There are many websites that offer free printable templates of floor plans. Archiplain is the best software to draw free floor plans. You have to move the furniture back and forth if you are not satisfied with the way it looked especially if you just based the planning on your imagination.
Show ImageFree Floorplan Template Luxury Printable Floor Plan Templates Pdf Woodworking Free Floor Plans Floor Plans Floor Plan Design
You may simply edit these free templates to make them your own. Android version of Floor Plan Creator uses one-off in-app purchases to activate premium functions. You need not do the planning in an old-fashioned way.
Show ImageA Free Customizable Garden Floor Plan Template Is Provided To Download And Print Quickly Get A Garden Planning Layout Floor Plan Design Garden Design Software
Creating floor plans by hand needs a lot of time. Advertentie See the Floor Tools your competitors are already using - Start Now. Next stamp furniture appliances and fixtures right on your diagram from a large library of floor plan symbols.
Show ImageArchiplain is the best software to draw free floor plans. Floor plan designers are made for beginners to quickly design a house you want. Easily design an emergency floor plan with this online tool for hotels office rooms home or even public buildings. Create high-quality 2D 3D Floor Plans in minutes on PC or Mac. It is a versatile and powerful floor plan maker which enables you to envision your dream house. Advertentie See the Floor Tools your competitors are already using - Start Now. You may simply edit these free templates to make them your own. Once you have a basic layout done click the 3D button and it converts the 2D design into something like what you see below. Followings are some of the large collection of free floor plan template we provide to. When the plan is complete you can download your map in PDF format to print or send to your friends.









